派沃爾 歐儀----氣動調節型法蘭球閥
產品名稱:氣動調節型法蘭球閥
氣動調節球閥是一種轉角為90°的旋轉類球閥,采用角行程氣動執行器及球閥組成。是在引進國外先進技術的基礎上進行特殊設計、精心制造的產品。氣動調節球閥采用智能控制與定位,與電氣閥門定位器配套,輸入4~20mADC信號及0.4~0.7MPa氣源即可控制運轉,實現對壓力、流量、溫度、液位等參數的調節。氣動調節球閥是以壓縮空氣為動力,閥桿帶動閥芯在閥體內轉動90°可以實現全開—全閉的動作。氣動調節球閥按其密封性能分為金屬密封與軟密封。具有結構緊湊、體積精小、運行可靠、密封性好、維修容易、安裝方便、適應性強等優點。特別適合于介質是粘稠、含顆粒、纖維性質的場合。氣動調節球閥廣泛應用于石油、化工、教學設備、輕工、高壓設備、制藥、造紙等工業自動控制系統中,作遠距離集中控制或就地控制。
氣動調節球閥 閥體
| 閥體形式 | 直通鑄造球型閥 |
| 公稱通徑 | DN15~300mm |
| 公稱壓力 | PN1.6、2.5、4.0、6.4 MPa;ANSI 150、300LB ;JIS 10、20、30K |
| 法蘭標準 | JIS、ANSI、GB、JB、HG等 |
| 連接形式 | 法蘭式、焊接式、螺紋式 |
| 閥蓋形式 | 整體式 |
| 壓蓋型式 | 螺栓壓緊式 |
| 密封填料 | V型聚四氟乙烯填料、含浸聚四氟乙烯填料、石棉編織填料、柔性石墨 |
氣動調節球閥 閥內件
| 閥芯形式 | O型球體閥芯 |
| 流量特性 | 快開特性 |
氣動調節球閥 執行機構
| 執行器型號 | GT、SR、ST、AT、AW系列單雙作用氣動執行器 |
| 供氣壓力 | 0.4~0.7MPa |
| 氣源接口 | G1/4"、G1/8"、G3/8"、G1/2" |
| 環境溫度 | -30~+70℃ |
| 作用形式 | 單作用執行機構:氣關式(B)--失氣時閥位開(FO);氣開式(K)--失氣時閥位關(FC) 雙作用執行機構:氣關式(B)--失氣時閥位保持(FL);氣開式(K)-- 失氣時閥位保持(FL) |
| 可配附件 | 定位器、電磁閥、空氣過濾減壓器、保位閥、行程開關、閥位傳送器、手輪機構等 |
注:如需詳細執行器參數,請進入氣動執行器頁面進行查閱。
氣動調節球閥 主要性能指標
| 公稱通徑 DN(mm) | 15 | 20 | 25 | 32 | 40 | 50 | 65 | 80 | 100 | 125 | 150 | 200 | 250 | 300 |
| 額定流量系數KV | 21 | 38 | 72 | 112 | 170 | 273 | 384 | 512 | 940 | 1452 | 2222 | 3589 | 5128 | 7359 |
| 允許壓差(MPa) | ≤ 公稱壓力 | |||||||||||||
| 動作范圍 | 0~90° | |||||||||||||
| 泄露量Q | 軟密封為零泄露;金屬密封符合ANSI B16.104 IV級標準 | |||||||||||||
| 基本誤差 | 帶定位器:小于全行程的±2% | |||||||||||||
| 回差 | 帶定位器:小于全行程的2% | |||||||||||||
氣動調節球閥 主要性能規范
| 試驗壓力(MPa) | 公稱壓力(MPa) | 壓力級(class) | JIS(K) | |||||||
| 1.6 | 2.5 | 4.0 | 6.4 | 10.0 | 150 | 300 | 600 | 10K | 20K | |
| 強度試驗 | 2.4 | 3.75 | 6.0 | 9.6 | 15.0 | 3.0 | 7.5 | 16.5 | 2.4 | 3.8 |
| 密封試驗 | 1.76 | 2.75 | 4.4 | 7.04 | 11.0 | 2.2 | 5.5 | 12.1 | 1.5 | 2.8 |
| 氣密試驗 | 0.5~0.7MPa | |||||||||
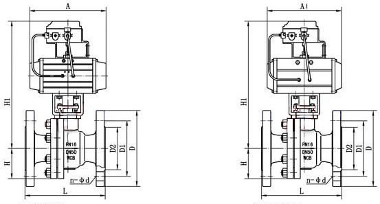
氣動調節球閥 外形尺寸

| 公稱通徑 DN(mm) | 15 | 20 | 25 | 32 | 40 | 50 | 65 | 80 | 100 | 125 | 150 | 200 | 250 | 300 |
| L | 130 | 140 | 150 | 165 | 180 | 200 | 220 | 250 | 280 | 320 | 360 | 400 | 630 | 750 |
| H | 44.5 | 49 | 55 | 65 | 65 | 75 | 90 | 95 | 115 | 127 | 140 | 172.5 | 310 | 350 |
| H1 | 根據所配執行機構而定 | |||||||||||||
| D | 95 | 105 | 115 | 140 | 150 | 165 | 185 | 200 | 220 | 250 | 285 | 340 | 405 | 460 |
| D1 | 65 | 75 | 85 | 100 | 110 | 125 | 145 | 160 | 180 | 210 | 240 | 295 | 355 | 410 |
| D2 | 46 | 56 | 65 | 76 | 84 | 99 | 118 | 132 | 156 | 184 | 211 | 266 | 319 | 370 |
| n-φd | 4-14 | 4-14 | 4-14 | 4-18 | 4-18 | 4-18 | 4-18 | 8-18 | 8-18 | 8-18 | 8-22 | 12-22 | 12-26 | 12-26 |
| A、A1 | 根據閥門所需力矩而定,配置機型不同,外形尺寸也不相同 | |||||||||||||
注:以上參數均以國標PN1.6MPa為準,其他壓力等級請咨詢公司技術部,表中尺寸為不帶標準附件數據,另由于產品改進技術創新參數可能有一定變化,請咨詢公司技術部門索取最新數據。
氣動調節球閥 閥體
| 閥體形式 | 直通鑄造球型閥 |
| 公稱通徑 | DN15~300mm |
| 公稱壓力 | PN1.6、2.5、4.0、6.4 MPa;ANSI 150、300LB ;JIS 10、20、30K |
| 法蘭標準 | JIS、ANSI、GB、JB、HG等 |
| 連接形式 | 法蘭式、焊接式、螺紋式 |
| 閥蓋形式 | 整體式 |
| 壓蓋型式 | 螺栓壓緊式 |
| 密封填料 | V型聚四氟乙烯填料、含浸聚四氟乙烯填料、石棉編織填料、柔性石墨 |
氣動調節球閥 閥內件
| 閥芯形式 | O型球體閥芯 |
| 流量特性 | 快開特性 |
氣動調節球閥 執行機構
| 執行器型號 | GT、SR、ST、AT、AW系列單雙作用氣動執行器 |
| 供氣壓力 | 0.4~0.7MPa |
| 氣源接口 | G1/4"、G1/8"、G3/8"、G1/2" |
| 環境溫度 | -30~+70℃ |
| 作用形式 | 單作用執行機構:氣關式(B)--失氣時閥位開(FO);氣開式(K)--失氣時閥位關(FC) 雙作用執行機構:氣關式(B)--失氣時閥位保持(FL);氣開式(K)-- 失氣時閥位保持(FL) |
| 可配附件 | 定位器、電磁閥、空氣過濾減壓器、保位閥、行程開關、閥位傳送器、手輪機構等 |
注:如需詳細執行器參數,請進入氣動執行器頁面進行查閱。
氣動調節球閥 主要性能指標
| 公稱通徑 DN(mm) | 15 | 20 | 25 | 32 | 40 | 50 | 65 | 80 | 100 | 125 | 150 | 200 | 250 | 300 |
| 額定流量系數KV | 21 | 38 | 72 | 112 | 170 | 273 | 384 | 512 | 940 | 1452 | 2222 | 3589 | 5128 | 7359 |
| 允許壓差(MPa) | ≤ 公稱壓力 | |||||||||||||
| 動作范圍 | 0~90° | |||||||||||||
| 泄露量Q | 軟密封為零泄露;金屬密封符合ANSI B16.104 IV級標準 | |||||||||||||
| 基本誤差 | 帶定位器:小于全行程的±2% | |||||||||||||
| 回差 | 帶定位器:小于全行程的2% | |||||||||||||
氣動調節球閥 主要性能規范
| 試驗壓力(MPa) | 公稱壓力(MPa) | 壓力級(class) | JIS(K) | |||||||
| 1.6 | 2.5 | 4.0 | 6.4 | 10.0 | 150 | 300 | 600 | 10K | 20K | |
| 強度試驗 | 2.4 | 3.75 | 6.0 | 9.6 | 15.0 | 3.0 | 7.5 | 16.5 | 2.4 | 3.8 |
| 密封試驗 | 1.76 | 2.75 | 4.4 | 7.04 | 11.0 | 2.2 | 5.5 | 12.1 | 1.5 | 2.8 |
| 氣密試驗 | 0.5~0.7MPa | |||||||||
氣動調節球閥 外形尺寸

| 公稱通徑 DN(mm) | 15 | 20 | 25 | 32 | 40 | 50 | 65 | 80 | 100 | 125 | 150 | 200 | 250 | 300 |
| L | 130 | 140 | 150 | 165 | 180 | 200 | 220 | 250 | 280 | 320 | 360 | 400 | 630 | 750 |
| H | 44.5 | 49 | 55 | 65 | 65 | 75 | 90 | 95 | 115 | 127 | 140 | 172.5 | 310 | 350 |
| H1 | 根據所配執行機構而定 | |||||||||||||
| D | 95 | 105 | 115 | 140 | 150 | 165 | 185 | 200 | 220 | 250 | 285 | 340 | 405 | 460 |
| D1 | 65 | 75 | 85 | 100 | 110 | 125 | 145 | 160 | 180 | 210 | 240 | 295 | 355 | 410 |
| D2 | 46 | 56 | 65 | 76 | 84 | 99 | 118 | 132 | 156 | 184 | 211 | 266 | 319 | 370 |
| n-φd | 4-14 | 4-14 | 4-14 | 4-18 | 4-18 | 4-18 | 4-18 | 8-18 | 8-18 | 8-18 | 8-22 | 12-22 | 12-26 | 12-26 |
| A、A1 | 根據閥門所需力矩而定,配置機型不同,外形尺寸也不相同 | |||||||||||||
注:以上參數均以國標PN1.6MPa為準,其他壓力等級請咨詢公司技術部,表中尺寸為不帶標準附件數據,另由于產品改進技術創新參數可能有一定變化,請咨詢公司技術部門索取最新數據。
021-61250946 61250905 61250945
手機:13671770016
18521512599
